Quadrilocale in vendita

Pescara, Via Pizzoferrato - Pescara Colli - Gesuiti
€ 229.000
4 locali 4 locali
101 Mq 101 Mq
2 bagni 2 bagni

Quadrilocale in vendita

Pescara, Via Pizzoferrato - Pescara Colli - Gesuiti

Descrizione annuncio

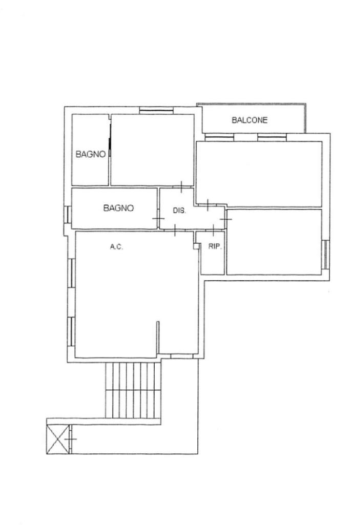
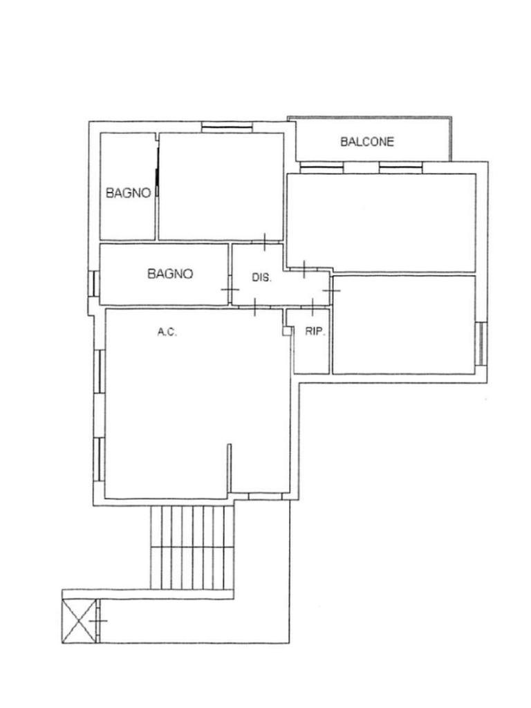
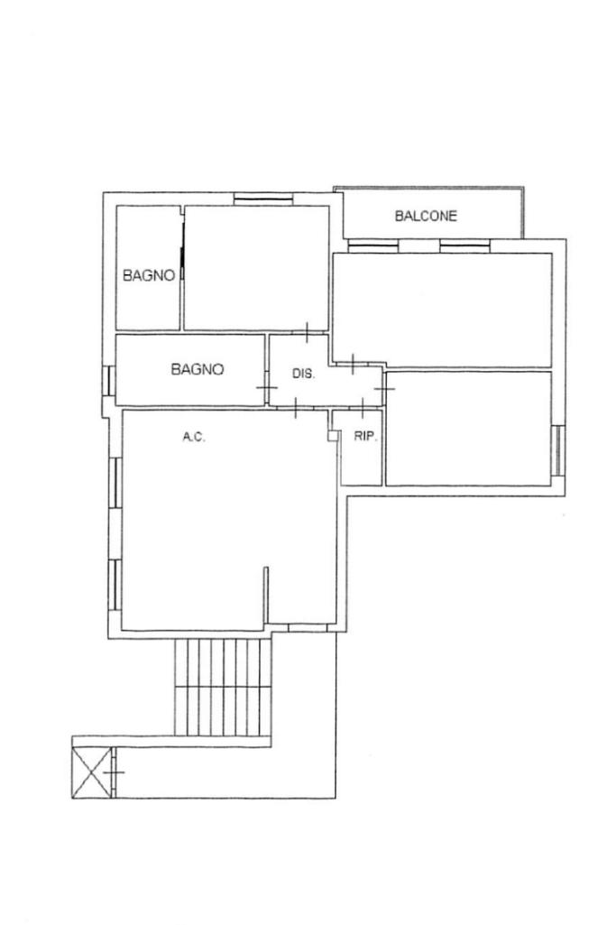
Pescara Colli - Gesuiti, proponiamo in vendita un appartamento completamente ristrutturato, situato al primo piano di una palazzina dotata di ascensore.

L'immobile offre un ambiente moderno e funzionale.

L'ampio soggiorno con angolo cottura rappresenta il fulcro della casa, ideale per momenti di convivialità.

Le tre camere da letto garantiscono spazio e comfort, con una camera dotata di bagno privato per una maggiore privacy.

Un secondo bagno serve il resto dell'appartamento.

Un comodo ripostiglio offre ulteriore spazio per l'organizzazione domestica.

Il balcone, permette di godere di un angolo all'aperto.

Una soluzione abitativa che coniuga praticità e stile in una delle zone più apprezzate di Pescara.

Mostra tutto

Nelle vicinanze

Trasporto pubblico Trasporto pubblico
stazione di Pescara Centrale
stazione di Pescara Centrale
760 m
stazione di Pescara Porta Nuova
stazione di Pescara Porta Nuova
2,1 Km
Via del Santuario, civ.122
Via del Santuario, civ.122
50 m
Via del Santuario, civ.160
Via del Santuario, civ.160
260 m
Ricariche auto elettriche Ricariche auto elettriche
Best Western Hotel Plaza
920 m
Pescara Diaz | EnelX
1,1 Km
Enel X Umberto I Sud-Ovest
1,2 Km
Enel X Umberto I Nord-Est
1,2 Km
Conad del Circuito
1,2 Km
Scuole Scuole
Scuola Paritaria Sorelle della Misericordia "Lucilla Ambrosi"
90 m
Scuola Paritaria Suore della Presentazione
300 m
I.P.S.I.A.S. "Di Marzio-Michetti"
320 m
Liceo Scientifico "Leonardo da Vinci"
360 m
Scuola Artistica Parrucchieri - SAP
390 m
Farmacia Farmacia
Di Giamberardino
260 m
BoscoPharma
330 m
Farmacia Bovio
440 m
Farmacia Dr. D'Ottavio
450 m
FarmaSi Parafarmacie
620 m
Ospedali Ospedali
Ospedale Civile Santo Spirito
940 m
Casa di Cura Privata "Pierangeli"
1,1 Km
AUSL Pescara Nord
1,4 Km
istituto Don Orione
1,6 Km
Istituto Don Orione
1,6 Km
Supermercati Supermercati
Stella d'Asia
400 m
Pepi Discount
410 m
Tigre
480 m
Todis
530 m
Supermercato Tigre
640 m
Negozi Negozi
La Foglia
20 m
I Terribili
320 m
Negozi
360 m
Pasta & Paste
390 m
Linea Donna
390 m
Bar Bar
Codice a BARre
420 m
FUORIUSO
720 m
Tropico Exotic Bar
720 m
Gatsby
790 m
OneMoreDrink
800 m
Ristoranti Ristoranti
A Casa Mia
50 m
Trattoria Gerardo
430 m
Trattoria del Naufrago
460 m
Lu Scaricarelle
460 m
Ferrovia 103
520 m
Mostra tutto

Caratteristiche

Rif.:
61167485
Piano:
1 di 5 con ascensore (Piano basso)
Balconi:
1
Camere da letto:
3
Arredamento:
Assente
Condizionamento:
Autonomo
Mostra tutto
Prezzo Prezzo
€ 229.000
Rata mutuo Rata mutuo
€ 1.079 / mese
Spese annue Spese annue
€ 600
Proponi il tuo prezzoProponi il tuo prezzo

Classe Energetica

G
G
G
G
G
G
G
G
G
EP globale non rinnovabile:
112.00 kW h/m² anno
EP globale rinnovabile:
112.00 kW h/m² anno
EP invernale del fabbricato:
EP estiva del fabbricato:
Anno di costruzione:
1970
Riscaldamento:
Autonomo
Tipo impianto:
A radiatori
Tipo alimentazione:
Metano

Ti interessa visionare l'immobile?

Fissa un appuntamento  Fissa un appuntamento

Richiedi informazioni

Clicca su Leggi per aprire l'informativa
* Questi campi sono obbligatori

Calcola il tuo mutuo

Semplice e senza impegno
Anticipo

( % )
Mutuo

( % )

pochi semplici passi

inserisci i tuoi dati
Questionario completato
Grazie per aver richiesto un appuntamento senza impegno con un nostro Consulente del Credito e Assicurativo.

Hai inserito correttamente tutti i dati necessari e a breve riceverai una e-mail con un link da convalidare per inviare i tuoi dati.
Affiliato
Studio Pescara Colli Srl
Via Del Santuario, 135 65125 Pescara (PE)

Il nostro staff


  • Michele Boccardi
    Affiliato

  • Tommaso Bruno
    Collaboratore

  • Federica D'Alicandro
    Coordinatrice

  • Amarelio Tafili
    Collaboratore

  • Giacinto Tarantino
    Responsabile

  • Giancarlo Carli
    Affiliato
Via Del Santuario, 135 65125 Pescara (PE)
Zona: Pescara
Mostra su mappa
Orari: Lunedi - Venerdi 09:00-13:00 e 15:30-20:00 Sabato 09:00-13:00 e 15:30-18:00 Domenica Chiuso
Affiliato
Studio Pescara Colli Srl
Via Del Santuario, 135 65125 Pescara (PE)

2026 Tecnocasa Franchising S.p.A. - P. IVA 08365160152 - Via Monte Bianco 60/A 20089 Rozzano (MI). Ogni agenzia ha un proprio titolare ed è autonoma. Privacy policy | Policy utilizzo | Cookie policy